Ventanas y fachadas con rotura de puente térmico.

Desde hace varios años las tendencias arquitectónicas están orientadas a la sostenibilidad y eficiencia de las construcciones. El objetivo es evaluar toda acción que contribuya con la reducción de las emisiones de dióxido de carbono mediante la disminución del consumo.
En este post compartiremos información sobre las ventajas de utilizar perfiles de aluminio con rotura de puente térmico (RPT).
¿Qué significa la rotura de puente térmico en perfiles de aluminio?
Al ser el aluminio un buen conductor de calor, éste permea del exterior al interior del edificio (y viceversa), por medio de las ventanas o muro cortina. Esto explica el porqué a pesar de tener el aire acondicionado a baja temperatura, los perfiles de las ventanas están muy calientes; o porqué en zonas frías, vemos pequeñas gotas de agua condensada en el aluminio.
Es por eso, que en lugares de climas cálidos o muy fríos se recomienda utilizar los perfiles de aluminio con rotura de puente térmico, para minimizar la conductividad del calor o frío a través de ellos.
Se trata de perfiles que tienen incrustado un material poco conductor, como lo es la varilla poliamida, que se encarga de aislar la cara interior y exterior del perfil, reduciendo de esta manera el calor que se transmite entre ambas.


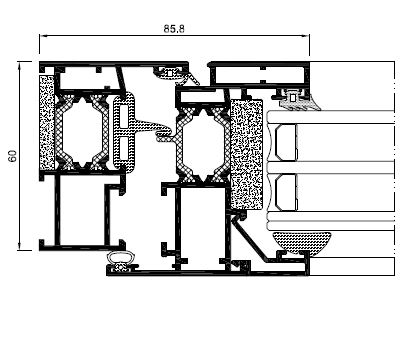
Perfil de aluminio Serie COR-60 RPT – Aluminios Cortizo
¿Cuáles son los beneficios de tener ventanas o fachadas con rotura de puente térmico?
Reduce el consumo de energía
El principal beneficio es el ahorro energético del interior del edificio. Al actuar como barrera reductora del calor que proviene del exterior, es necesario utilizar menor energía en el interior para enfriar el ambiente.
Sin duda, es de las mejoras que puedes realizar en tu hogar, generando ahorros en la factura de electricidad.
Aislamiento acústico
Complementa el aislamiento acústico si has elegido un vidrio con estas características, otorgando una reducción acústica hasta de 48 dB.
Reduce la condensación
Reduce la condensación, al evitar el choque de temperaturas entre el interior y el exterior.
Perfil de aluminio bicolor
Otra ventaja de utilizar RPT es que, debido a su proceso de fabricación, admite acabados diferentes por cada cara. Esta cualidad ofrece un sinfín de combinaciones, que te permitirán elegir un color o acabado que haga juego con tu decoración interior, sin alterar la estética de la fachada por su exterior, lo cual resulta muy atractivo en remodelaciones residenciales o en oficinas.
Si quieres lograr un mayor impacto en el aislamiento térmico de tu hogar u oficina, puedes además elegir un vidrio con las mismas propiedades. En el post anterior tipos de vidrio con aislamiento térmico compartimos algunas alternativas para que puedas elegir el complemento que más se adapte a tu estilo y necesidades.
